Patan Durbar Square
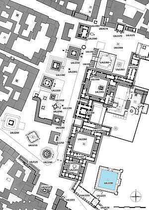
Patan Durbar Square is the heart of the old town of Lalitpur and one of three royal squares in the Kathmandu Valley. Today, Patan stands out as the best-preserved urban ensemble in the Valley containing more than twenty major temples and three royal palaces built between the 16th and 18th centuries under the rule of the Malla Kings. Following the conquest by the Shah dynasty in 1767/68 CE, Patan Darbar fell into disrepair. The 1934 earthquake further damaged many historic structures, some of them never to be rebuilt completely. After Patan Darbar Square became part of a UNESCO World Heritage Site in 1979, conservation efforts were initiated with local and international funding. The Viśveśvara Mandira was restored with support from UNESCO and Keśavanārāyaṇa Coka, one of the royal palaces, was converted into the Patan Museum with funding from the Austrian Government. Other major donors included the Government of Japan, the World Monument Fund, the US Ambassadors Fund and the German Federal Ministry. The devastating effects of the 2015 earthquakes considerably slowed down the restoration progress; two major temples and two sataḥs collapsed completely while other temples and sections of the Royal Palace suffered severe structural damage. However, rebuilding activities were immediately initiated with the support of the local community, private institutions, government agencies, and international organizations. Citizens, hand in hand with army, police and conservation experts helped to sort through the earthquake rubble and bring hundreds of invaluable art objects to safety. The Kathmandu Valley Preservation Trust took on a leading role in organizing an international fundraising drive and managing the restoration and conservation of over twenty monuments. As of today (July 2022), seven years after the earthquake, more than 90% of Patan Darbar's built heritage has been restored to the highest conservation standards.
Links to individual monuments
