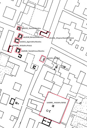
Ikhālakhu इखालखु
Ikhālakhu (lit. ‘a square place with a small ravine’) is one of the main city quarters in Patan. This place is referred to as Yeṣālaṃṣu in a palm-leaf manuscript from 1486 CE (NS 585) and as Eṣālakhu in the Kīrtipatākā (verse 57); a poem composed by a court poet Kunu Śarmā in 1652 CE (NS 772). The poet describes Ikhālakhu as a beautiful place, which houses various monasteries, temples, open theatres as well as several historical statues of Bhairava, Nṛtyanātha, Garūḍa, Śiva, Viṣṇu and so forth. Historically, this place was a home for royal nobles and businessmen who build several Hindu and Buddhist monuments here, such as Śvetabhairava Mandira (established 1726), Gaṇeśa Mandira (also built in 1726 by the donor Manohara Siṃha Bhāro but collapsed during the earthquake of 1934), Jagannātha Mandira (renovated VS 2051), Iku Bāhāḥ, Ikhālakhu Bāhāḥ or I Bāhāḥ. Both Hindus and Buddhists jointly perform social-religious event at Ikhālakhu. For example, this is one of the ten major city quarters responsible for organizing Matayāḥ festival (a procession of light) in Patan.
